第五代户型改革来啦!三期建面约128㎡「全景舱」户型重磅来袭!

iPhone一次机型更新,大概需要一年时间,与之相比,市场上住宅产品的迭代时间:

早已是faster than faster。


作为硬控购房者的「抓手」,「新规」后的户型明显在操作层面有更高自由度,全景舱的全面搭载、空间尺度的灵活应用、动区与静区的开放联动,豪宅的户型设计,直接持续上大分。


市场,从来不缺乏购买力,缺的是想象力。中铁·岭南府三期打造的央璟建面约128㎡户型,一出招就是绝招!


image.png

|三期效果图



图片


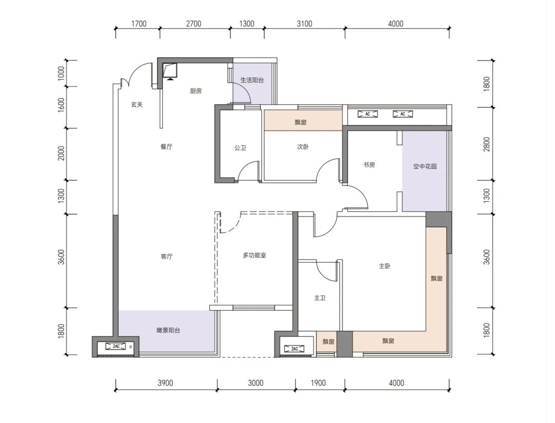
从户型图上来看,建面约128㎡全景舱户型,3开间朝南+豪华套房主卧的配置,已然在同面积产品中树立标杆。但中铁·岭南府三期并未止步于此,而是深入探索空间与生活的共生关系,以“4大场景舱”革新重构改善住宅的可能性。


图片

|建面约128㎡户型图


图片


三面宽朝南,意味着什么?大多数楼盘会说:通风好采光佳。而中铁·岭南府三期在基础之上,为这扇“IMAX级宽屏”定制了别样的画面。推窗而望,城市繁华夜景尽收眼底,南向约7米超长观景阳台加持,每一扇窗皆是景观画。


高清大图内的花瓣采集图片-不要出现异常

阳台|图源网络,侵删



图片


LDKB餐客厅阳台一体化设计,着重于场景打造,让餐客厅化身家庭情感枢纽。餐桌不再只是吃饭的地方,而是和家人、朋友以及自己分享生活的空间——插花、手工、烘焙、办公、轰趴、亲子......


在悠闲的周末,呼朋唤友小聚一下,和小朋友互动玩游戏,和爱人一块健身活动,这些在超大尺度的餐客厅空间中都成为可能,也让业主的家庭生活和社交娱乐更加的丰富多彩。


图片

LDKB厅|样板间效果图



图片


主卧套房设计,约5.9米豪横开间尺度,摆放2米大床绰绰有余。配置270°飘窗空间,可根据主人需求,随心打造成居住者想要的模样,休憩放空、阅读品茗、游戏娱乐......关于私密空间中所有的美好想象,都在这里,变得触手可及。


图片

主卧|样板间效果图


另一间次卧,自带飘窗的设计,让室内阳光呵护家人身体健康。在恰到好处的间距中,既保有独立生活节奏,又维系着随时可见的温情。


图片

次卧|样板间效果图



图片


如何用一套户型,覆盖家庭从二人世 界,到三口之家的每个阶段?中铁·岭南府三期在建面约128㎡空间及动线的安排上,做出可个性定制的“X空间”,为不断进阶的家庭持续拓展趣味场景。


图片

次卧|样板间效果图



年轻人嗨玩场景


足够大的空间,能够盛放下年轻人足够多的兴趣。没有界限的空间,即可以让年轻人连通主卧+书房+空中花园,改造出“超豪华卧房”配置,也能够保留书房功能。无论是一个人的静谧,两个人的甜蜜,在这里统统实现。


图片

书房|样板间效果图



孩子成长的场景


当年轻父母忙于工作,而无暇陪伴家人,建面约128㎡全景舱则能为这种痛点,给出解决方案。客厅侧边预留的多功能房空间,与餐客厅融为一体化LDKB空间,给孩子更大的舞台撒欢游戏。父母也可以将它改为办公区,在无隔阂的多功能空间中,平衡工作与生活,更自如的陪伴孩子玩耍,缩短情感距离。

图片

多功能室|样板间效果图


从追求户型参数到重视居住感受,真正的好房子从不说教生活,它只是默默生长出无数可能。当三代人的生活习惯在此和谐共生,当孩子的涂鸦渐渐贴满展示墙,当阳台的多肉从一盆变成花园,这方建面约128㎡容器里的光阴故事,正在等待真正懂生活的导演。



图片



图片















改善头等舱 三期精筑上新
中铁·岭南府

建面约128㎡全景舱

限藏臻 席 争藏从速

三期诚意登记中
















特别声明:本文来自郴房头条号自媒体“头条号”作者上传并发布,仅代表该作者观点。郴房网仅提供信息发布平台。
商品房预售须取得《商品房预售许可证》,用户在购房时需慎重查验开发商的证件信息。本页面所提到房屋面积如无特别标示,均指建筑面积。如有新闻稿件和图片作品的内容、版权以及其它问题的,请及时通知我们,以采取适当措施。

中铁·岭南府三期

五岭板块
7680元/平米
销售电话:4006607358,0105
楼盘地址:香雪路和南岭大道交汇处
获取底价:专属顾问,享内部购房底价

团购报名

姓名:

手机:

户型:

面积:

楼盘:

获取底价

[中铁·岭南府三期]最新均价为7680元/㎡,请持续关注

您可以提交团购报名,享内部购房底价。

网友点评(0

登录后才能评论,去登录