在寸土寸 金的城市中芯,“瞰湖”一般都是高端住宅的专属标签。然而动辄上百万的总价,让多数人望而却步。但现在,南岭学府正打破这份“遥不可及”——仅4字头起的单价,就能在郴州北湖核芯地段,坐拥瞰湖景观!
当“低门槛”遇上“湖景+市中心”的双重buff,这份“把城市风光与舒居生活一起拥入怀”的惊喜,无疑是今年楼市里值得入手的“宝藏选择”。
北湖公园实景图

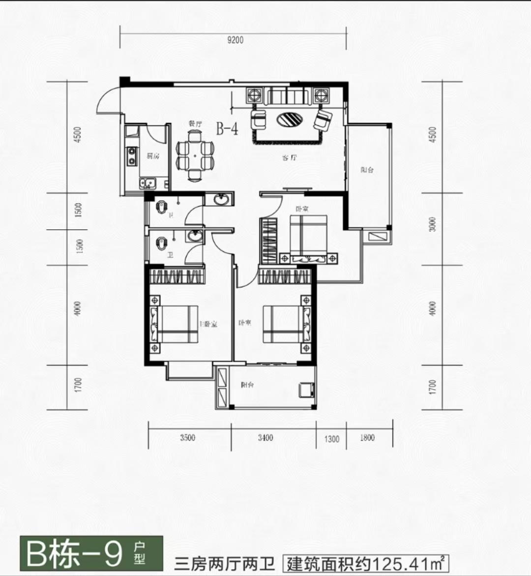
不必为了景观和地段妥协居住尺度,南岭学府建面约125㎡全能三房,恰好踩中了当代人对“理想家”的所有期待:高层推窗是北湖公园的粼粼湖光,晨雾漫过湖面时,赏尽自然与生活真谛,度假生活也不过如此。转身是三代同堂的舒阔格局,每个家庭成员都能拥有专属空间。

居于南岭学府,郴州市五中、湘南学院附属医院、北湖商圈近在咫尺,日常通勤不用挤早高峰、逛街购物举步可达、孩子目送式上学更便利。无需等待城市新区的配套落地,也不用忍受远郊通勤的奔波,抬头是湖光粼粼的自然景致,低头则是柴米油盐的烟火幸福。

南岭学府实拍图

北湖商圈实景图

建面约125㎡全能三房,餐客厨一体化设计,连通南向观景阳台,阳光顺着湖光漫进房间,无论是周末陪孩子在客厅搭积木,还是傍晚和家人在阳台赏湖聊天,都能被温暖与惬意包裹。尤其是阳台的尺度,不仅能放下休闲茶座,还预留了家政空间,观景、实用两不误。
网络示意图
三个卧室的布局,满足三代同堂。主卧套房自带独立卫浴,给主人足够的私密与尊崇;一间次卧给孩子;另另一间次卧自带阳台,方正采光面,老人居住更舒适,即使是阴雨天气,室内也明亮通透,告别潮湿与压抑。更关键的是,两卫设计避免了洗漱高峰期的“排队”烦恼,每一处设计都有对生活的用心。
网络示意图
对于买房人来说,“4字头起”的单价,意味着用更低的置业门槛,就能锁定市中芯的湖景生活。与其在“高总价”与“差地段”之间纠结,不如趁现在,把南岭学府市中芯的瞰湖好房,变成自己的“家”。